Gå til: Plantegning | Fasade | Kontaktskjema
1110 – Flermannsbolig
Herskapelig og flott flermannsbolig
Romslige leiligheter med preg av tradisjonell herskapelig stil. Man har her felles tilkomst med trappeoppgang og avsatt plass til løfteplattform. Leilighetene har tilgang til terrasse/balkong fra et romslig allrom.
Tilgjengelig bolig.
TEKNISK DATA
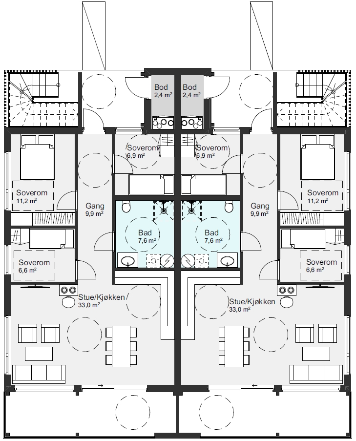
PLANTEGNING
ØNSKER DU MER INFORMASJON?
FYLL UT SKJEMAET, SÅ KONTAKTER VI DEG FOR EN HYGGELIG BOLIGPRAT
ARKITEKT
ALT KAN TILPASSES FOR Å IMØTEKOMME DERES ØNSKER OG BEHOV
Fordelene med å bygge et helt nytt hus, er at du kan få det akkurat slik som du vil. Trolig finner du en husmodell i vår katalog som kan passe, men kanskje ønsker du å tilpasse boligen etter egne ønsker og behov.
Vi vil gjøre vårt ytterste for at du skal bli fornøyd, og hjelper deg hele veien fra idé til ferdig bolig. Vi har fagkunnskap og gir gode råd for at du skal få bygget en bolig som passer deg helt perfekt.»







