• Byggmann

1108 – Flermannsbolig

Klassisk og arealeffektiv flermannsbolig

Klassisk og arealeffektiv flermannsbolig

Bolig 1108 er en firemannsbolig fordelt på to etasjer. Fasaden har et klassisk uttrykk, med moderne detaljer. En kompakt bolig med det man trenger.

Tilgjengelig bolig. Gjelder kun enhetene på bakkeplan.

TEKNISK DATA

Største lengde: 11,96 m
Største bredde: 18,32 m
Bruksareal: 292,5 m²
Bebygd areal: 182 m²
Energimerking: Oransje - B

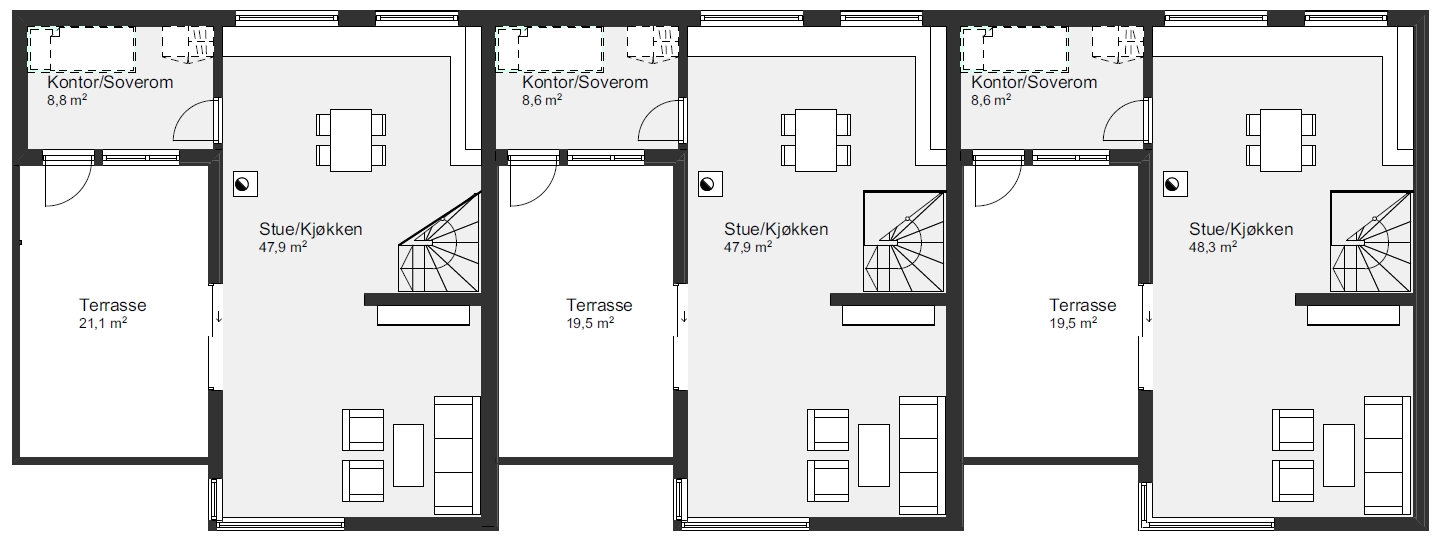
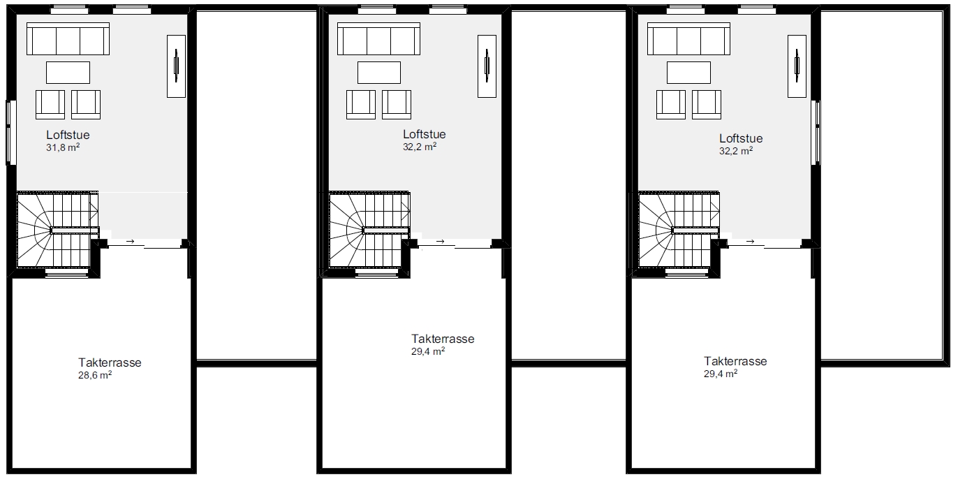
PLANTEGNING

1. ETASJE

2. ETASJE

FASADE

ØNSKER DU MER INFORMASJON?

FYLL UT SKJEMAET, SÅ KONTAKTER VI DEG FOR EN HYGGELIG BOLIGPRAT

    ARKITEKT

    ALT KAN TILPASSES FOR Å IMØTEKOMME DERES ØNSKER OG BEHOV

    Fordelene med å bygge et helt nytt hus, er at du kan få det akkurat slik som du vil. Trolig finner du en husmodell i vår katalog som kan passe, men kanskje ønsker du å tilpasse boligen etter egne ønsker og behov.

    Vi vil gjøre vårt ytterste for at du skal bli fornøyd, og hjelper deg hele veien fra idé til ferdig bolig. Vi har fagkunnskap og gir gode råd for at du skal få bygget en bolig som passer deg helt perfekt.»

    Trykk her for å lese mer om arkitekttjenester fra Byggmann.